SMACNA Issues Revised HVAC Duct Design Manual
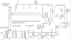
Chantilly, Va. (April 9, 2024) — The Sheet Metal and Air Conditioning Contractors' National Association (SMACNA), the leader in promoting quality and excellence in the sheet metal and air conditioning industry, published the fifth edition of its HVAC Systems Duct Design Manual, which is available digitally and in print. This edition presents the methods and procedures for properly designing an HVAC air distribution system, with new detailed information on duct design, duct fitting selection, examples, calculations, and tables.
In addition to the basic engineering principles for the sizing of HVAC ductwork systems, the manual also provides detailed information on: air distribution materials; methods of construction; economics of duct systems; duct system layout; fan selection; duct leakage; acoustic considerations; and testing, adjusting, and balancing.
The updated 404-page standard was revised to provide contractors, designers, and facility owners with the information they need to apply effective and efficient solutions to their projects.
“Our technical team works tirelessly to ensure HVAC contractors, design professionals, and building code officials have access to the latest design information to enable them to create and complete a project per the plans and specs with full conformance to the building codes for cost effective delivery to the client,” said Aaron Hilger, SMACNA’s Chief Executive Officer. “As the needs of our clients change, we adapt with them and the construction projects they design.”
Technical standards and manuals developed by SMACNA members have worldwide acceptance by the construction and code community, as well as local and national government agencies. SMACNA standards and manuals address all facets of the sheet metal and HVAC industry – including duct construction and installation, indoor air quality, energy recovery, roofing and architectural sheet metal, welding, and commissioning – and advancements are made possible by those in the industry who provide suggestions for improvement based on knowledge, experience, and research. All of SMACNA’s standards manuals are available in print or PDF format via SMACNA’s online bookstore.
For more information on SMACNA’s industry-leading standards, visit www.smacna.org/resources/technical/technical-standards.

